HOME
会社案内
お問い合せ
INSTAGRAM
MENU
HOME
会社案内
お問い合せ
INSTAGRAM
閉じる
FOR SALE
売地
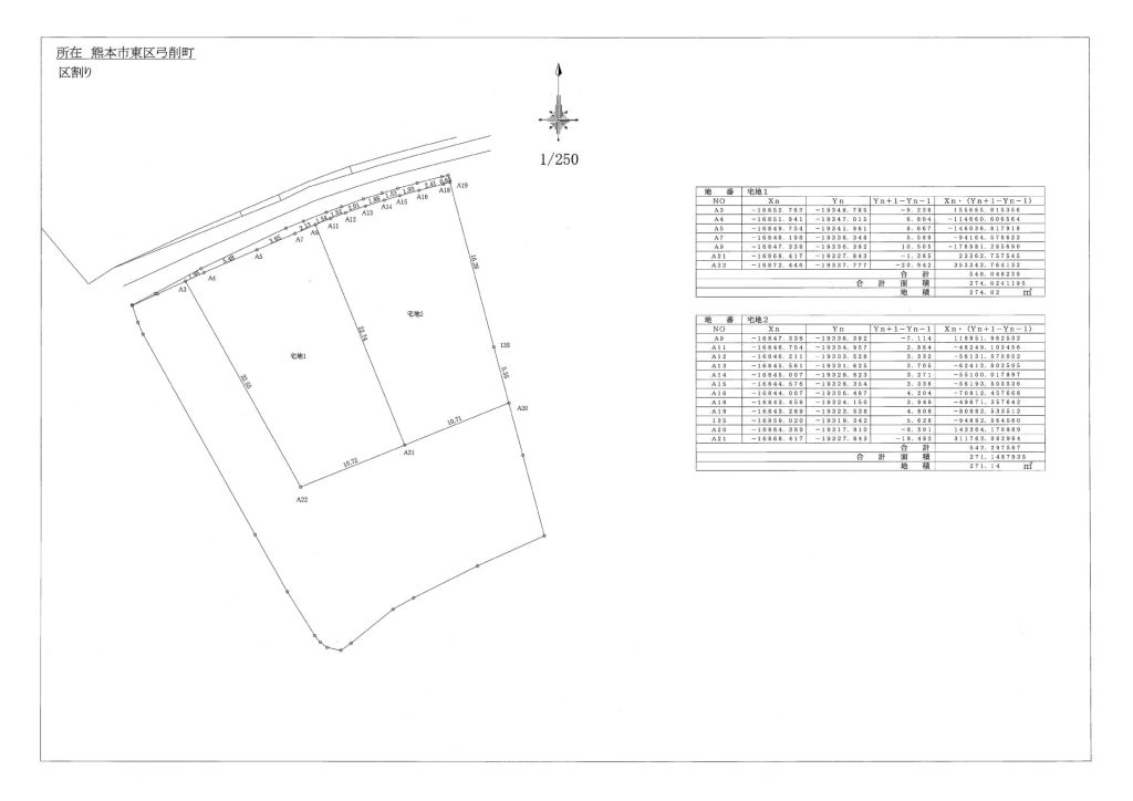
熊本市東区弓削町
価格
1,189
万円
販売中/募集中
最寄り交通機関
「弓削」バス停 徒歩約3分
所在地
熊本市東区弓削町
土地面積
271.14m
2
(82.01坪)
坪単価
14.5万円
建ぺい率/容積率
40%/80%
地目
宅地
用途地域
指定なし
接面道路
北側公道 幅員 約 3.2 ~ 3.5 m(中心後退予定 後退後幅員4m)
学校区
託麻北小学校、東部中学校
建築条件
建築条件なし
引き渡し
相談(現況渡し)
取引態様
仲介
備考・コメント
※集落内開発区域
※都市計画法第43条の建築許可を要します
詳細資料をダウンロードする
現地図
※現地につきましては現況優先となります。詳細はお気軽にお問い合せください。